首頁
企業簡介
產品介紹
新聞資訊
國家專利
視頻展示
聯係我們
高溫免清理火口
燒毛機
印花機專用四輥刷毛箱
高溫免清理火口
鋁合金高溫節能火口
梭織燒毛機
針織褲筒專用燒毛機
特寬無紡布燒毛機
高彈性麵料燒毛機
不鏽鋼整體燒毛機
窗簾飾品專用燒毛機
電加熱接觸式燒毛機
四火口燒毛單元
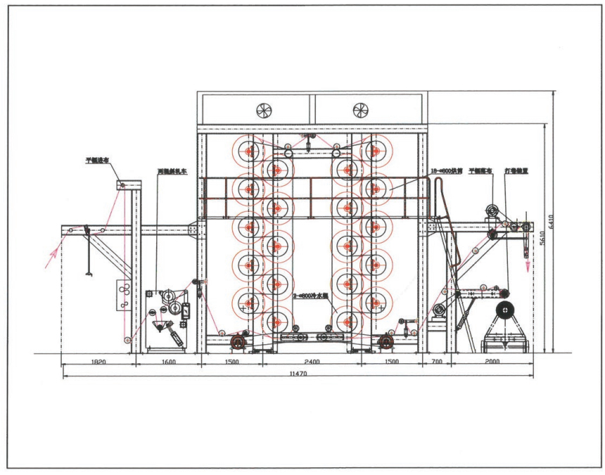
烘燥機 水洗機
印花機專用四輥刷毛箱
導布輥
各種燒毛機輔機、和配件
地址:山東昌邑市石埠經濟發展區
聯係人:孫經理
電話:
傳真:
手機:
Email:
網址:
www.1680793.cn
烘燥機